U gebruikt een verouderde internetbrowser.
We raden u aan om de meest recente internetbrowser te installeren voor de beste weergave van deze website.
Een internetbrowser die up to date is, staat ook garant voor veilig surfen.

Helaas, dit pand is verkocht

9031 Gent

Omschrijving

Gezinswoning met zonnige tuin

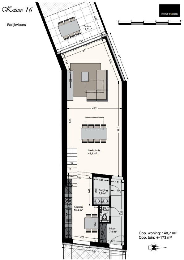
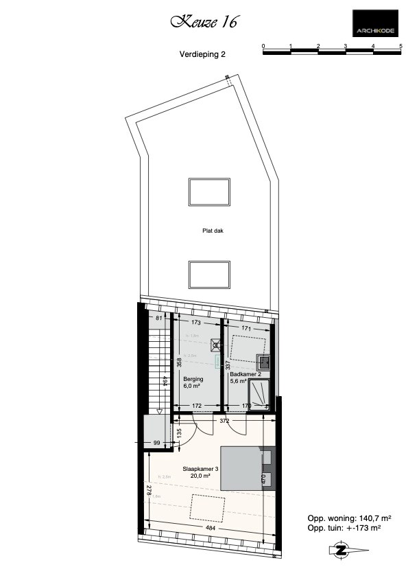
In de topgemeente Drongen vindt u deze woning (te renoveren), gelegen in rustige straat nabij Gent en oprit E40. Pand is te koop met reeds goedgekeurde bouwvergunning van renovatie (aankoop mogelijk aan 2%!). Indeling volgens nieuwe bouwplannen: gelijkvloers bestaande uit inkomhall, berging, mooie grote living en open keuken (samen maar liefst 58 m²) met zicht op zonnig terras en tuin. De 1ste verdieping bestaat uit 2 slaapkamers en 1ste badkamer. Een verdieping hoger bevindt zich de masterbedroom van 20 m² met eigen 2de badkamer en bergruimte (ideaal voor mogelijks dressing). Vraagprijs woning in huidige staat met goedgekeurde bouwvergunning is 215.000 euro. Pand kan ook aangekocht worden in volledig gerenoveerde staat volgens bouwplannen (groot voordeel, renovatie is mogelijk aan gunsttarief 6% BTW), richtprijs 399.000 euro. Voor meer info of een bezoek, contacteer Inge 0477 57 47 68.



Niet gevonden wat u zocht? Schrijf u dan vrijblijvend in en blijf op de hoogte van ons recentste aanbod.
Schrijf u in
Terug naar boven
Sluit menu Ingimmo